Как правильно оформить дизайн двухкомнатной хрущевки? Делать ли перепланировку? Можно ли преобразить убитую квартиру в прекрасное и стильное жилище? Если вы задаетесь хоть одним из этих вопросов — Декорин готов помочь.
В этой статье мы максимально подробно обсудим все тонкости, связанные с ремонтом хрущёвок и вы обязательно найдете ответы на все свои вопросы. Готовы?
Поехали!







Дизайн перепланировки двухкомнатной хрущевки: идеи для разных типов квартир
Итак, вами было принято решение о перепланировке квартиры, что делать дальше?
Из важного:
- Следует помнить, что для осуществления задуманного нужно будет получить согласование от соответствующих инстанций.
- Продумать подробный план и сделать чертежи перепланировки.






Дальше мы расскажем какой дизайн перепланировки двухкомнатной хрущевки будет удачным для каждого из распространенных типов квартир.
Хрущевка-книжка с проходной комнатой
Есть два основных варианта перепланировки подобной квартиры, это:
- Сделать большую кухню гостиную
- Сделать две отдельных комнаты
В первом случае мы убираем перегородку между кухней и большой комнатой (см.фото)

И вот что у нас получается:



Кухня находится как бы в нише, но за счет отсутствия перегородки получаем расширенное, функциональное пространство.








Во втором случае главная задача — разъединить комнаты. Это значит что неминуемо придется “воровать” пространство в пользу распределительного коридора.
Вот смотрите:





Таким образом, мы хоть и уменьшим размер обеих комнат, но обеспечим их полную автономность.
Выбор наиболее подходящего варианта будет зависеть от состава семьи и количества человек проживающих в квартире.
Уловая двухкомнатная хрущевка
Угловая квартира в данном случае — подарок судьбы, ведь её можно переделать в трёхкомнатную поставив перегородки. Предварительно следует увеличить пространство комнаты за счет сноса кладовой:



А вот как будет выглядеть обновленный дизайн угловой хрущевки:

Дизайн двухкомнатной хрущевки вагончик и распашонка
В планировке типа “вагончик” всегда стараются убрать проходную комнату и объединить санузел. Более глобальные изменения осуществить уже более затруднительно в связи со строением квартиры:



Распашонка — планировка хрущевки выходящая окнами на противоположные стороны улицы. Здесь легко можно объединить кухню и гостиную как на фото:

Дизайн двухкомнатной хрущевки без перепланировки
Бывают случаи когда перепланировка хрущевки невозможна или нецелесообразна. Если расположение комнат вас устраивает, да и заморачиваться со службами БТИ тоже нет особого желания, предлагаем создать дизайн двухкомнатной хрущевки без перепланировки. При правильном подходе, он может получиться достаточно свежим, красивым и даже концептуальным.
А вот несколько фото дизайна двухкомнатных хрущевок без перепланировки:






Теперь давайте рассмотрим несколько свежих идей!
1. Зонирование
Если решено отказаться от перепланировки, а увеличить количество комнат всё же актуально, можно поставить перегородки в виде шкафов, стеллажей, разделив пространство на автономные жилые зоны. Смотрите пример на фото ниже:


Этот вариант выполнен в угловой двухкомнатной хрущевке, где спальня разделена на две зоны.
А здесь с помощью перегородки в виде куба удалось объединить целых три функциональных зоны! Спальня, кабинет и даже красивая кухня и все это гармонично вписывается в интерьер:

2. Ретро стиль
Очень интересное решение! Если история квартиры имеет для вас большую ценность, можно сберечь её аутентичность не пренебрегая комфортом.
А вот великолепный пример стильного ретро дизайна в хрущевке:




Сочетание винтажной мебели и предметов интерьера создают очень приятную атмосферу жилища:

Дизайн двухкомнатной квартиры хрущевки до и после ремонта
А сейчас самое интересное! Для того чтобы получилось визуализировать преображение, мы покажем вам как из старой хрущевки получилась красивая квартира.
Поехали!
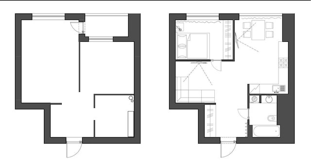
Итак, обратите внимание на фото, вот так выглядела квартира до:


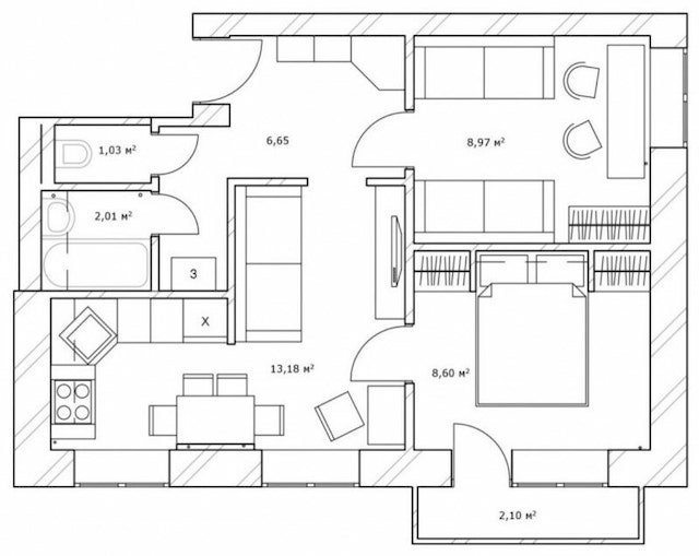
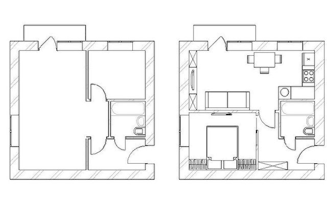
Чертеж изначальной планировки говорит нам о том, что это квартира типа “книжка”. Поскольку в квартире предусмотрено проживание двух взрослых человек, проходную комнату решили использовать в качестве гостиной. Сравните чертежи планировки до и после:


Из длинной, светлой прихожей есть дверь в ванную. Цвет выбран неслучайно, поскольку белый освежает пространство и визуально расширяет его.


А вот и фото ванной ДО:

И ПОСЛЕ:



Кухня гостиная сделана по принципу сноса перегородки о котором говорилось выше:


То есть сама по себе она осталась небольшой, но теперь не ощущается тесной, поскольку объединена с гостиной. Здесь нашлось место также и для прелестной в своей уютности обеденной зоны:


А вот и сама гостиная двухкомнатной квартиры со всех ракурсов:



Уютная, просторная и функциональная.
Спальня:

За изголовьем кровати есть скрытая ниша — это гардеробная комната, которая была переделана из бывшей кладовой. Обратите внимание, вот она:

А также, у окна в спальне оборудован рабочий стол со всеми необходимыми приспособлениями.
Ну как вам дизайн двухкомнатной квартиры хрущевки после преображения?
Если хотите узнать больше о преображении квартир читайте материал «Ремонт квартир своими руками: фото до и после ремонта»





Ну что ж, надеемся что нам удалось сделать эту статью максимально информативной, полезной и вдохновляющей для вас. Теперь вы знаете как создать дизайн двухкомнатной хрущевки с нуля. Профессионалы команды Декорин с удовольствием готовы радовать вас интересным материалом. Удачи!